120 Merrivale Lane Turramurra NSW
POSITION POSITION POSITION. THE PERFECT FAMILY HOME WITH ENDLESS OPPORTUNITY
House
INSPECT BY APPOINTMENT ONLY
MARK 0412 425676 OR MARK@LUSCHWITZ.COM.AU
Expansive wide fronted block in an enviable location. Enjoy the peace, tranquillity and the Pymble Golf Course vista this location offers – and the convenient proximity to schools, shops and transport. (Pymble Public Catchment)
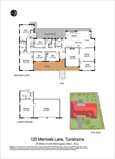
A solid full brick family home on the high side of the street nestled in a relaxing garden setting with level lawns, sunny aspect and total privacy. 5 bedrooms – main and second bedrooms with e-suites, study, formal lounge and separate dining, massive chefs kitchen adjoins the sitting room and leads effortlessly to the gardens. Rumpus room, cellar and double garaging completes the picture.
Dimensions 34.65/27.2X36.58/37.29 – Area 1,121sqm.
ENJOY AS IS, ADD VALUE OR RE DEVELOP – THE POSSIBILITIES ARE ENDLESS
